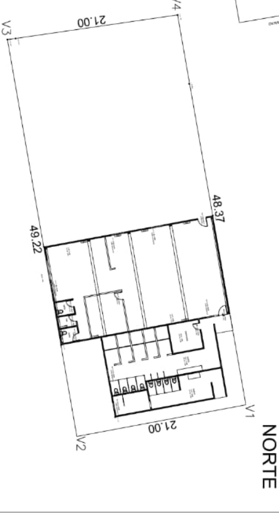
- 380 m² de construcción
- 1,000 m² de terreno
Ver Tour Virtual
Detalles
- Tipo: Bodega comercial
- ID: EB-US5481
Descripción
A unos metros de periferico norte de la ciudad de Mérida, Yucatan, cercano a centros comerciales., edificios de oficinas, edificios habitacionales, oficinas comerciales, zona industrial y area habitacional.
Espacio techado de 380 mt2, sobre un terreno de 1,000 mt2, dejando mas de 600 mt2 para estacionamiento o maniobras. El predio cuenta con instaciones eléctricas para contactos, iluminación y aire acondicionado.
Aceptan doble deposito
Aceptan contacto largos
Se pueden negociar adecuaciones y mejoras
Valor del contrato dependerá del instrumento legal que se elija
Se emite factura
Espacio techado de 380 mt2, sobre un terreno de 1,000 mt2, dejando mas de 600 mt2 para estacionamiento o maniobras. El predio cuenta con instaciones eléctricas para contactos, iluminación y aire acondicionado.
Aceptan doble deposito
Aceptan contacto largos
Se pueden negociar adecuaciones y mejoras
Valor del contrato dependerá del instrumento legal que se elija
Se emite factura
Ubicación
Industrial, Mérida, Yucatán
Contáctanos











