Quality Paraíso

  • 5591301027
  • quality-paraiso.easybroker.com

TERRENO COMERCIAL EN ESQUINA | RENTA | 1000m2

Dzityá, Mérida

$50 For Rent

  • 1,000 m² Lot Size
  • 50 m Lot Length
  • 20 m Lot Width
  • EB-UV6322 ID
Description

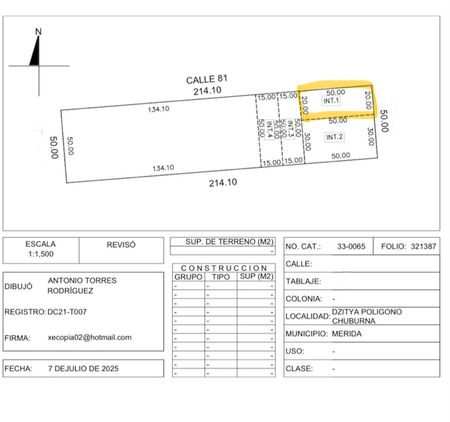
TERRENO DE 20 m x 50 (10,000m2)
En la imagen del plano , es lo marcado con amarillo.

^^^***EN ESQUINA***^^^

Sobre avenida “Maquiladoras”

Precio $50 el m2 + iva
Mensual

Requisitos:
• Depósito
• Convenio
• Aval o segundo depósito

El convenio se puede firmar hasta por 10 años.
La renta empieza a correr hasta que ya esté instalado el negocio.

Más información preguntar directamente a su asesor y agendar visita.

***Precios e imágenes están sujetos a cambios sin previo aviso****

Quality Paraíso

  • 5591301027
  • quality-paraiso.easybroker.com