Quality Paraíso

  • 5591301027
  • quality-paraiso.easybroker.com

RENTA DE BODEGA EN PARQUE INDUSTRIAL EN SANTA CATARINA N.L.

Regio Parque Industrial Santa Catarina, Santa Catarina

US$ 7.20 per m² For Rent

  • 71 Parking spaces
  • 9,858 m² total space
  • 18,820 m² Lot Size
  • 1 Floors
  • 2025 Age
  • EB-UD8163 ID
Description

Renta de nave industrial parque en industrial en Santa Catarina Nuevo León.

Precio de renta de $7.20 USD. por m2 de renta.

Mas los impuestos correspondientes mas la cuota de mtto.

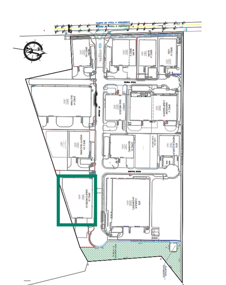
FICHA TÉCNICA :

A continuación se presenta un resumen de las especificaciones del edificio "SPEC IX - VSCIP" en español, basado en los datos que proporcionaste.

ESPECIFICACIONES DEL PROYECTO IX - VSCIP
Este documento detalla las características de un edificio, probablemente un centro de distribución o una nave industrial, diseñado para operaciones logísticas o de manufactura.

Datos Clave y Dimensiones
Área de Terreno: 18,820 m²

Estacionamientos: 71 espacios

Andenes de Carga: 10 (mencionados como "5 + 5 Docks")

Rampas: 1 rampa de concreto

Altura Libre (Clear Height): 9.14 metros (30 pies), ideal para sistemas de estantería de alta densidad.

Dimensiones de la Bahía
La información de la bahía presenta una discrepancia en las unidades proporcionadas.

Medida en metros: 10.20 m x 21.25 m

Medida en pies/pulgadas: 69' - 9" x 33' - 6"

Nota: Las dimensiones en metros y en pies/pulgadas no coinciden entre sí, ya que las medidas en pies son significativamente más grandes. Es probable que haya un error de transcripción o de conversión en los datos originales.

Materiales y Estructura
Estructura del Edificio: Marco rígido de acero

Material de Paredes: Paneles de concreto prefabricado (Pre-Cast Concrete)

Material de Techo: Techo de costura alzada (Standing Seam Roof)

Espesor del Piso: 6 pulgadas (15 cm)

Tragaluces (Skylights): Aproximadamente 4% del área del techo

Otras Instalaciones
Caseta de Vigilancia / Subestación: 9.90 m² (106.56 ft²)

Con base en estas especificaciones, se trata de un edificio industrial de Clase A, diseñado para ser robusto y eficiente. La combinación de la estructura de acero, paredes de concreto prefabricado y la gran altura libre lo hacen una instalación moderna y muy adecuada para operaciones de alto volumen.

Amenities
  • Platform
  • 24 Hour Security
  • Street parking
  • Loading dock
  • Patio

Quality Paraíso

  • 5591301027
  • quality-paraiso.easybroker.com