Quality Paraíso

  • 5591301027
  • quality-paraiso.easybroker.com

Local Renta Puerto Queretaro Plaza del Río

Plaza del Parque, Querétaro

$15,000 For Rent

  • 10 m² total space
  • EB-MK4141 ID
Description

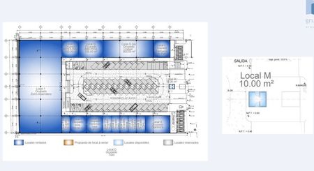
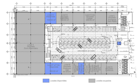
Locales en Renta disponible ubicados ,en Plaza del Río excelente zona comercial

Local Área Precio

M 10 m² $15 000
D 50 m² $17.500
F y F- bis 150 m² $52,500
H 100 M2 $35,000


*Servicios:
Estacionamiento.
Mantenimiento de áreas comunes.
Seguridad.

Amenities
  • 24 Hour Security

Quality Paraíso

  • 5591301027
  • quality-paraiso.easybroker.com